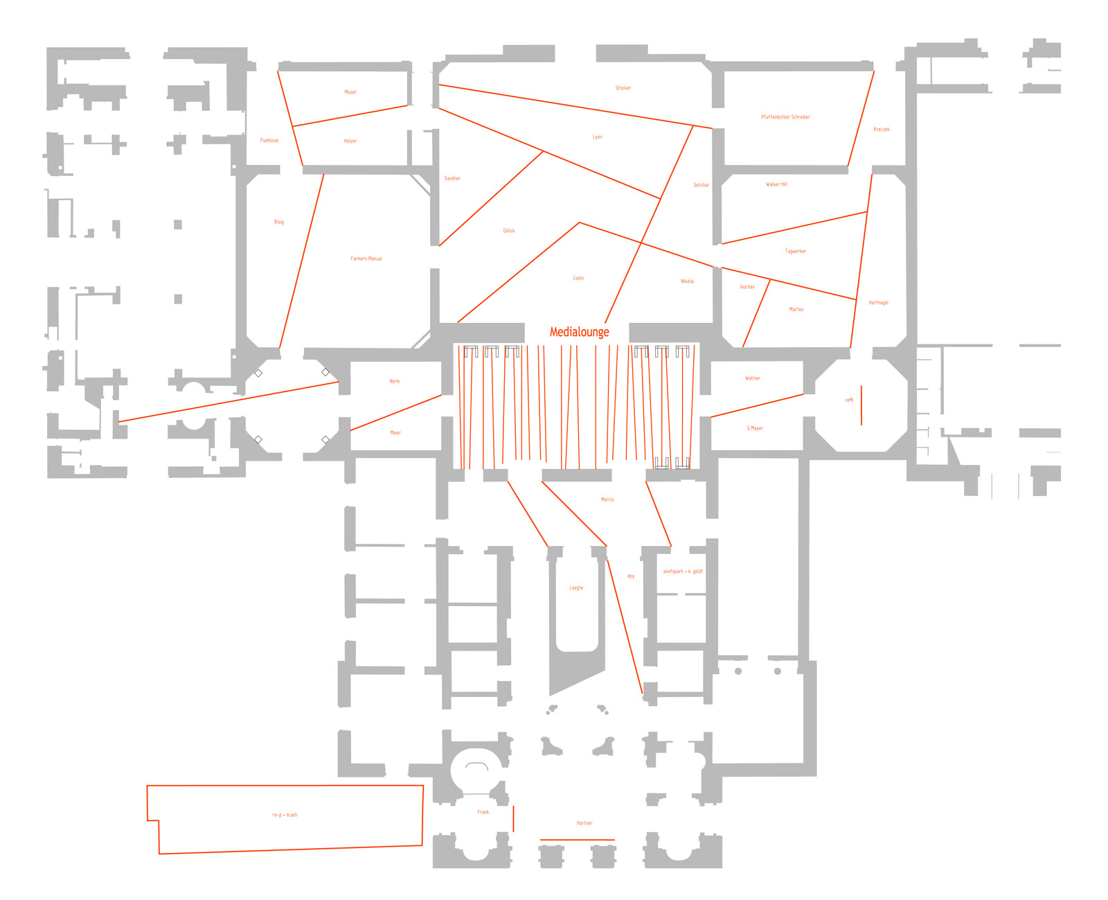
Ein großes Raumvolumen, rund 7.800 m³ in 13 unterschiedlichen Räumen stehen für die Ausstellung „abstraction now“ zur Verfügung. Was nicht zur Verfügung steht, ist Geld um zusätzliche Architekturen und Objekte zu materialisieren. Als ArchitektInnen sahen wir unsere Aufgabe darin, einerseits die unterschiedlichen Qualitäten der vorhandenen Räume auf die jeweiligen Werke abzustimmen (Licht, Ton, Abgeschlossenheit, Volumen …) und andererseits den klassizistischen Ausstellungsraum zu vermessen und einen neuen Grundriss einzuschreiben. Die Anzahl der Künstler ergibt die Streuung des neu eingeschriebenen Plans. Für die Dauer der Ausstellung wird er, im Maßstab 1:1 im Künstlerhaus aufgezeichnet, die Grundrisslinien werden zur Bodenmarkierung, sie bleiben abstrakt und zweidimensional.
abstraction now
Ausstellungsarchitektur für zeitgenössische abstrakte Kunst
k/haus Wien
2003
- Ort Wien
- Auftraggeber Künstlerhaus Wien
- Architektur Heidi Pretterhofer, Dieter Spath
- Mitarbeit Sophie Riegler
- Kuratoren Norbert Pfaffenbichler, Sandro Drosch
- Schlagworte Ausstellung | Kunst
